top of page

Joshua

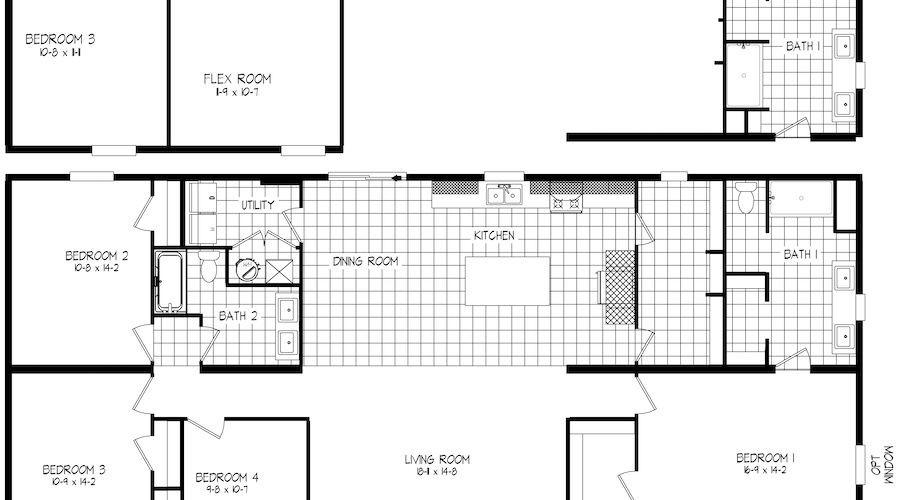
New home

$146,406

Model Details

Structure Type

Double Section

Size

Bedrooms

Bathrooms

1,980 sq.ft.

4

2

FLOOR PLAN

ree

PHOTO GALLERY



VIRTUAL TOUR



PRICE REQUEST & INFO

For additional information please fill out the form below or call (480) 900 - 1492

Finance option
Full Cash Purchase
Finance Purchase
Home Placement Options
I have property/space for my home
I'm looking for a location for my home
bottom of page